Plan No.219632
European Country Design
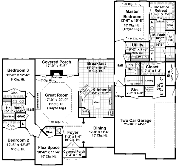
Looking for the house that has it all? Then look no further. This beautiful European Country design features all the things that make a house a home. Three over-sized bedrooms are complimented by large closets, and the flex space provides a perfect spot for that home office, playroom, or fourth bedroom. A formal dining room, breakfast area, and raised bar all provide spaces for those family meals with close access to the fully equipped kitchen. The great room includes gas logs, a trayed ceiling, and beautiful views through french doors to the covered rear porch beyond. The master bedroom also features trayed ceilings and the master bathroom leaves nothing to be desired. The expansive garage provides plenty of room for oversized trucks and SUV's and also includes a large storage area. This is the perfect home for you and your family! An optional Basement is available for $275.00.
Specifications
Total 2369 sq ft
- Main: 2369
- Second: 0
- Third: 0
- Loft/Bonus: 474
- Basement: 0
- Garage: 737
Rooms
- Beds: 3
- Baths: 2
- 1/2 Bath: 1
- 3/4 Bath: 0
Ceiling Height
- Main: 9'0
- Second:
- Third:
- Loft/Bonus: 8'0
- Basement:
- Garage: 10'4
Details
- Exterior Walls: 2x4
- Garage Type: doubleGarage
- Width: 69'2
- Depth: 65'6
Roof
- Max Ridge Height: 26'4
- Comments: ()
- Primary Pitch: 10/12
- Secondary Pitch: 12/12

833–493–0942


