Plan No.195126
Truly Great Plan
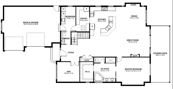
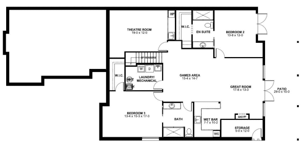
This beautiful hillside home has all the amenities. With a Master Bedroom featuring an en suite, walkâin closet and access to a covered deck, this truly is a great plan. Each bedroom has private access to a bathroom and everyone will enjoy the theater room and games room with wet bar.
Specifications
Total 3625 sq ft
- Main: 1829
- Second: 0
- Third: 0
- Loft/Bonus: 0
- Basement: 1796
- Garage: 608
Rooms
- Beds: 3
- Baths: 3
- 1/2 Bath: 1
- 3/4 Bath: 0
Ceiling Height
- Main: 9'0
- Second:
- Third:
- Loft/Bonus:
- Basement: 8'0
- Garage: 10'6
Details
- Exterior Walls: 2x6
- Garage Type: doubleGarage
- Width: 42'0
- Depth: 85'0
Roof
- Max Ridge Height: 29'0
- Comments: ()
- Primary Pitch: 6/12
- Secondary Pitch: 0/12
Add to Cart
Pricing
– westhomeplanners.com
– westhomeplanners.com
– westhomeplanners.com
– westhomeplanners.com
[Back to Search Results]

833–493–0942


