Plan No.222240
Country Style Classic
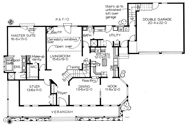
The inviting verandah is reminiscent of by-gone years. A beautiful, bright livingroom is at the heart of this design, the ceiling in part is open to the second floor...light floods down from the clerestory windows over...this is indeed a great room. Both the livingroom and master suite have access to the rear patio thru french doors. The large master suite offers many refined options, a big walk-in closet with adjacent makeup vanity and a well-appointed ensuite bathroom.
Specifications
Total 2577 sq ft
- Main: 1778
- Second: 799
- Third: 0
- Loft/Bonus: 276
- Basement: 1767
- Garage: 563
Rooms
- Beds: 4
- Baths: 2
- 1/2 Bath: 1
- 3/4 Bath: 0
Ceiling Height
- Main: 8
- Second: 8
- Third:
- Loft/Bonus:
- Basement: 8
- Garage: 9'4
Details
- Exterior Walls: 2x6
- Garage Type: doubleGarage
- Width: 80
- Depth: 51
Roof
- Max Ridge Height:
- Comments: ()
- Primary Pitch: 0/12
- Secondary Pitch: 0/12
Add to Cart
Pricing
– westhomeplanners.com
– westhomeplanners.com
– westhomeplanners.com
– westhomeplanners.com
[Back to Search Results]

833–493–0942


