Plan No.431681
10'-0" Deep Front & Rear Porches
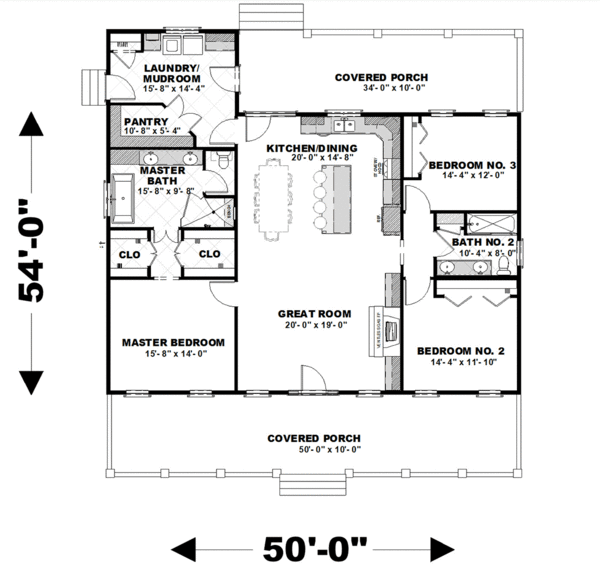
A ventless gas fireplace is featured in the Great Room. There is an island with a snack bar located in the Kitchen. A spacious Pantry is located in the Laundry/ Mud room. The Master Bedroom is located on one side of the house along with the Master Bathroom for more privacy. The Master Bathroom also has a shower with a bench as well as an amazing freeĀ standing tub. Bedrooms 2 and 3 are on the other side of the house and share a large bathroom. See our garage plan collection. If you order a house and garage plan at the same time, you will get 10% off your total order amount.
Specifications
Total 1860 sq ft
- Main: 1860
- Second: 0
- Third: 0
- Loft/Bonus: 0
- Basement: 0
- Garage: 0
Rooms
- Beds: 3
- Baths: 2
- 1/2 Bath: 0
- 3/4 Bath: 0
Ceiling Height
- Main: 9'0
- Second:
- Third:
- Loft/Bonus:
- Basement:
- Garage:
Details
- Exterior Walls: 2x6
- Garage Type: none
- Width: 50'0
- Depth: 54'0
Roof
- Max Ridge Height: 23'8
- Comments: (Main Floor to Peak)
- Primary Pitch: 8/12
- Secondary Pitch: 6/12
Add to Cart
Pricing
Full Rendering – westhomeplanners.com
MAIN Plan – westhomeplanners.com
Fall Rendering – westhomeplanners.com
Right & Rear – westhomeplanners.com
Rear & Left – westhomeplanners.com
3D Floor Plan – westhomeplanners.com
[Back to Search Results]

833–493–0942




