Plan No.754843
Specifications
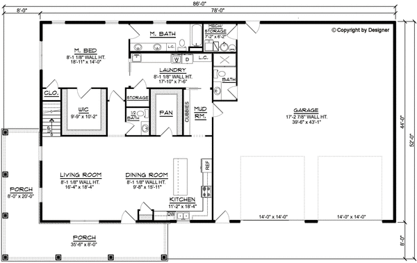
Total 3484 sq ft
- Main: 1767
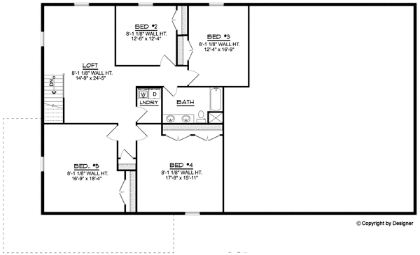
- Second: 1717
- Third: 0
- Loft/Bonus: 0
- Basement: 0
- Garage: 1665
Rooms
- Beds: 5
- Baths: 3
- 1/2 Bath: 1
- 3/4 Bath: 0
Ceiling Height
- Main: 8'0
- Second: 8'0
- Third:
- Loft/Bonus:
- Basement:
- Garage:
Details
- Exterior Walls: 2x6
- Garage Type: 2 Car Garage
- Width: 78'0
- Depth: 44'0
Roof
- Max Ridge Height: 25'0
- Comments: (Main Floor to Peak)
- Primary Pitch: 4/12
- Secondary Pitch: 0/12
Add to Cart
Pricing
– westhomeplanners.com
– westhomeplanners.com
– westhomeplanners.com
Front – westhomeplanners.com
Right & Rear – westhomeplanners.com
Rear – westhomeplanners.com
Left – westhomeplanners.com
[Back to Search Results]

833–493–0942





