Plan No.754202
Specifications
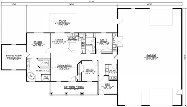
Total 2024 sq ft
- Main: 2024
- Second: 0
- Third: 0
- Loft/Bonus: 0
- Basement: 0
- Garage: 2400
Rooms
- Beds: 3
- Baths: 2
- 1/2 Bath: 0
- 3/4 Bath: 0
Ceiling Height
- Main: 9'0
- Second:
- Third:
- Loft/Bonus:
- Basement:
- Garage:
Details
- Exterior Walls: 2x6
- Garage Type: fiveGarage
- Width: 111'6
- Depth: 60'0
Roof
- Max Ridge Height: 21'3
- Comments: (Main Floor to Peak)
- Primary Pitch: 5/12
- Secondary Pitch: 0/12
Add to Cart
Pricing
– westhomeplanners.com
– westhomeplanners.com
Front & Right – westhomeplanners.com
Rear & Left – westhomeplanners.com
Front & Left – westhomeplanners.com
[Back to Search Results]

833–493–0942



