Plan No.690602
Total Living Area may increase with Basement Foundation option. Single Build License issued on CAD File orders. Concerning PDF or CAD File Orders: Designer requires that a End User License Agreement be signed before fulfilling PDF and CAD File order. Materials List may take 3-5 weeks to fulfill depending on availability.
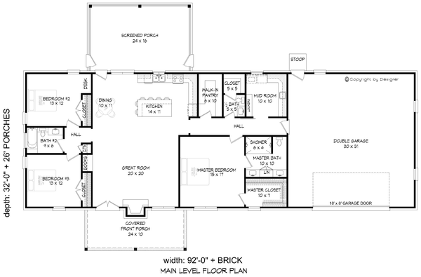
Specifications
Total 2060 sq ft
- Main: 2060
- Second: 0
- Third: 0
- Loft/Bonus: 0
- Basement: 0
- Garage: 999
Rooms
- Beds: 3
- Baths: 2
- 1/2 Bath: 1
- 3/4 Bath: 0
Ceiling Height
- Main: 9'0
- Second:
- Third:
- Loft/Bonus:
- Basement:
- Garage:
Details
- Exterior Walls: 2x4
- Garage Type: 2 Car Garage
- Width: 92'0
- Depth: 58'0
Roof
- Max Ridge Height: 20'5
- Comments: (Main Floor to Peak)
- Primary Pitch: 8/12
- Secondary Pitch: 0/12
Add to Cart
Pricing
– westhomeplanners.com
– westhomeplanners.com
– westhomeplanners.com
– westhomeplanners.com
– westhomeplanners.com
FRONT Elevation – westhomeplanners.com
[Back to Search Results]

833–493–0942




