Plan No.432970
Country Cottage or ADU
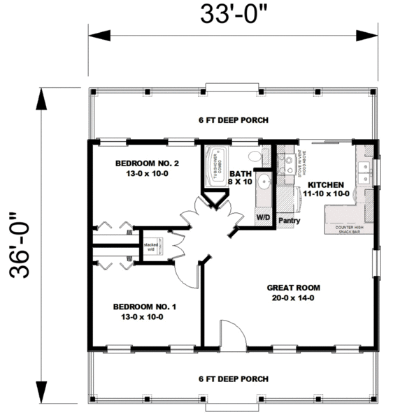
This compact cottage or ADU features 2 bedrooms, 1 bathroom incorporating a laundry closet for a stacking washer and dryer, and an open floor layout with a snack bar counter in the Kitchen. The bathroom has a combined tub/shower. There is a pantry cupboard in the kitchen and upper and lower cabinets provide lots of storage. A sliding door that leads out of the kitchen to the rear covered porch. Both the front and the back porches are 6 feet-deep. See our garage plan collection. If you order a house and garage plan at the same time, you will get 10% off your total order amount. Total Living Area may increase with Basement Foundation option.
Specifications
Total 792 sq ft
- Main: 792
- Second: 0
- Third: 0
- Loft/Bonus: 0
- Basement: 0
- Garage: 0
Rooms
- Beds: 2
- Baths: 1
- 1/2 Bath: 0
- 3/4 Bath: 0
Ceiling Height
- Main: 8'0
- Second:
- Third:
- Loft/Bonus:
- Basement:
- Garage:
Details
- Exterior Walls: 2x4
- Garage Type: none
- Width: 33'0
- Depth: 36'0
Roof
- Max Ridge Height: 19'6
- Comments: (Main Floor to Peak)
- Primary Pitch: 7/12
- Secondary Pitch: 0/12
Add to Cart
Pricing
– westhomeplanners.com
– westhomeplanners.com
3D Floor Plan – westhomeplanners.com
3D From Right – westhomeplanners.com
3D From Rear – westhomeplanners.com
– westhomeplanners.com
[Back to Search Results]

833–493–0942




