Plan No.695892
Single Build License issued on CAD File orders. Concerning PDF or CAD File Orders: Designer requires that a End User License Agreement be signed before fulfilling PDF and CAD File order.
Specifications
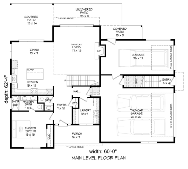
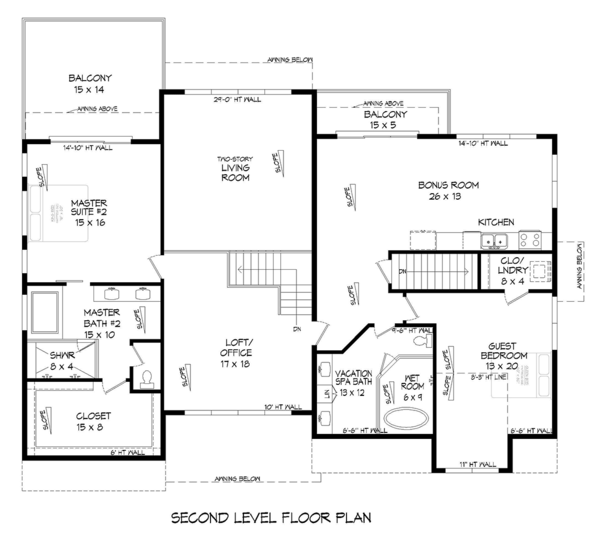
Total 2985 sq ft
- Main: 1253
- Second: 1732
- Third: 0
- Loft/Bonus: 0
- Basement: 0
- Garage: 1032
Rooms
- Beds: 3
- Baths: 3
- 1/2 Bath: 1
- 3/4 Bath: 0
Ceiling Height
- Main: 9'0+
- Second:
- Third:
- Loft/Bonus:
- Basement:
- Garage:
Details
- Exterior Walls: 2x6
- Garage Type: 3 Car Garage
- Width: 60'0
- Depth: 62'4
Roof
- Max Ridge Height: 31'7
- Comments: (Main Floor to Peak)
- Primary Pitch: 3/12
- Secondary Pitch: 0/12
Add to Cart
Pricing
– westhomeplanners.com
– westhomeplanners.com
– westhomeplanners.com
Rear Rendering – westhomeplanners.com
– westhomeplanners.com
– westhomeplanners.com
– westhomeplanners.com
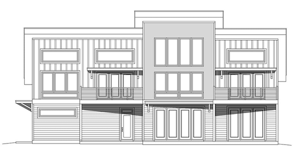
FRONT Elevation – westhomeplanners.com
[Back to Search Results]

833–493–0942






