Plan No.740301
Family Favorite
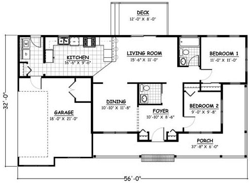
The open design of this Ranch house is ideal for the young family who wants a home that can grow as they do. The wraparound covered porch provides the perfect place for a swing or rocker. It will become a favorite place for the family to gather during the day or evenings to watch outdoor activities. A large kitchen has a breakfast bar that will be used all day long. It also features easy access to the utility room and the formal dining room. The rear deck is accessible thru sliding glass doors from the living room to extend the entertaining to the great outdoors.
Specifications
Total 1030 sq ft
- Main: 1030
- Second: 0
- Third: 0
- Loft/Bonus: 0
- Basement: 0
- Garage: 374
Rooms
- Beds: 2
- Baths: 1
- 1/2 Bath: 1
- 3/4 Bath: 0
Ceiling Height
- Main: 8'0
- Second:
- Third:
- Loft/Bonus:
- Basement:
- Garage:
Details
- Exterior Walls: 2x6
- Garage Type: 2 Car Garage
- Width: 56'0
- Depth: 32'0
Roof
- Max Ridge Height: 18'6
- Comments: (Main Floor to Peak)
- Primary Pitch: 6/12
- Secondary Pitch: 0/12
Add to Cart
Pricing
– westhomeplanners.com
– westhomeplanners.com
[Back to Search Results]

833–493–0942
