Plan No.430864
Country Cottage
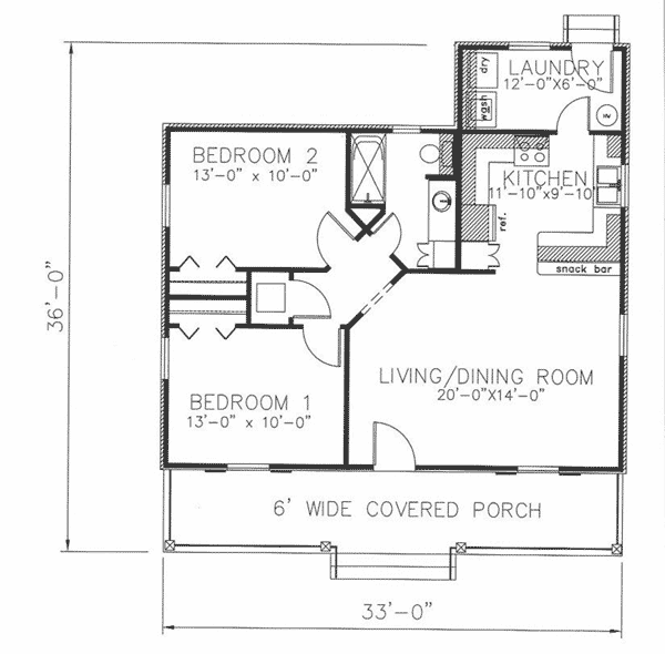
Country Cottage with a nice Front Porch, just Perfect for that Mountain Get Away, Small Family or A Retired Couple. The Great Room has a large Living/Dining Area that shares a snack bar with the Kitchen. See our garage plan collection. If you order a house and garage plan at the same time, you will get 10% off your total order amount.
Specifications
Total 864 sq ft
- Main: 864
- Second: 0
- Third: 0
- Loft/Bonus: 0
- Basement: 0
- Garage: 0
Rooms
- Beds: 2
- Baths: 1
- 1/2 Bath: 0
- 3/4 Bath: 0
Ceiling Height
- Main: 8'0
- Second:
- Third:
- Loft/Bonus:
- Basement:
- Garage:
Details
- Exterior Walls: 2x4
- Garage Type: none
- Width: 33'0
- Depth: 36'0
Roof
- Max Ridge Height: 20'0
- Comments: (Main Floor to Peak)
- Primary Pitch: 7/12
- Secondary Pitch: 0/12
Add to Cart
Pricing
– westhomeplanners.com
– westhomeplanners.com
Front Photo – westhomeplanners.com
Kitchen – westhomeplanners.com
Kitchen – westhomeplanners.com
Bedroom 1 – westhomeplanners.com
[Back to Search Results]

833–493–0942




