Plan No.304582
French Country Home Design
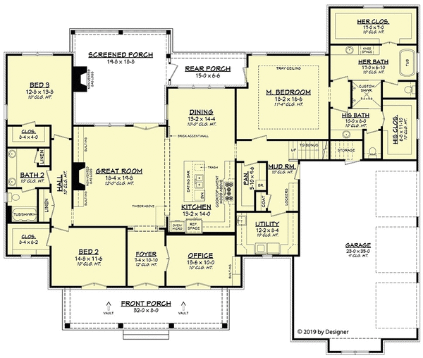
French country design - 3 large bedrooms - 2 large baths - Open floor plan - Large kitchen with island - Walk in pantry - Large rear porches - Separate master baths and closets - Oversized three car garage - Volume ceilings - Office - Future Bonus room with bath. Total Living Area may increase with Basement Foundation option.
Specifications
Total 2854 sq ft
- Main: 2854
- Second: 0
- Third: 0
- Loft/Bonus: 642
- Basement: 0
- Garage: 876
Rooms
- Beds: 3
- Baths: 2
- 1/2 Bath: 0
- 3/4 Bath: 0
Ceiling Height
- Main: 10'0-12'0
- Second:
- Third:
- Loft/Bonus: 9'0
- Basement:
- Garage:
Details
- Exterior Walls: 2x4
- Garage Type: tripleGarage
- Width: 81'4
- Depth: 68'4
Roof
- Max Ridge Height: 28'0
- Comments: (Main Floor to Peak)
- Primary Pitch: 8/12
- Secondary Pitch: 12/12
Add to Cart
Pricing
– westhomeplanners.com
– westhomeplanners.com
– westhomeplanners.com
Opt. Basement Stairs – westhomeplanners.com
Front & Left – westhomeplanners.com
Front Porch – westhomeplanners.com
Front – westhomeplanners.com
Rear & Right – westhomeplanners.com
– westhomeplanners.com
[Back to Search Results]

833–493–0942







