Plan No.435241
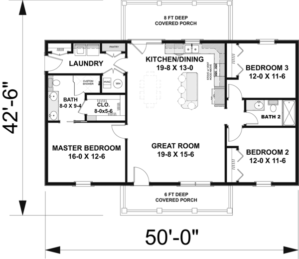
Three Bedroom Modern Farmhouse with Split Bedrooms
Construction is efficient because it has a simple layout. Several straight walls will make construction fast and easy. Vertical white siding has a clean appearance, and it’s easy to find at the building supply store. In-stock building supplies are budget-friendly. In contrast, custom materials are more expensive. These cost-effective details bring instant curb-appeal. This budget-friendly house plan is available to build on a slab or crawlspace foundation. See our garage plan collection. If you order a house and garage plan at the same time, you will get 10% off your total order amount.
Specifications
Total 1425 sq ft
- Main: 1425
- Second: 0
- Third: 0
- Loft/Bonus: 0
- Basement: 0
- Garage: 0
Rooms
- Beds: 3
- Baths: 2
- 1/2 Bath: 0
- 3/4 Bath: 0
Ceiling Height
- Main: 9'0
- Second:
- Third:
- Loft/Bonus:
- Basement:
- Garage:
Details
- Exterior Walls: 2x6
- Garage Type:
- Width: 50'0
- Depth: 42'6
Roof
- Max Ridge Height: 20'0
- Comments: (Main Floor to Peak)
- Primary Pitch: 8/12
- Secondary Pitch: 0/12
Add to Cart
Pricing
– westhomeplanners.com
– westhomeplanners.com
– westhomeplanners.com
Great Room – westhomeplanners.com
Kitchen – westhomeplanners.com
Master Bath – westhomeplanners.com
– westhomeplanners.com
– westhomeplanners.com
3D Floor Plan – westhomeplanners.com
[Back to Search Results]

833–493–0942







