Plan No.580990
Compact Design with Full Sized Amenities
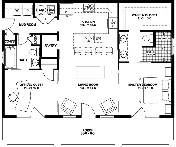
This compact plan features a fully equipped kitchen with a walk-in pantry and eating bar that comfortably seats up to four. The spacious floor plan accommodates full sized furniture and appliances. 9' ceilings and pocket doors throughout the home create a spacious and open feeling. The pocket doors leading into the master suite and guest room can either be closed for privacy or can provide a large 5' wide opening. The modern roll-in shower in the master suite provides both easy access and eliminates the maintenance required by glass doors. Measuring over 6' from end to end, the shower accommodates dual shower heads. The master suite also includes a double vanity and a large walk-in closet. This design also features a mudroom/laundry room, an ensuite bath for guests and a full width front porch. Also available with 2x4 exterior walls.
Specifications
Total 988 sq ft
- Main: 988
- Second: 0
- Third: 0
- Loft/Bonus: 0
- Basement: 0
- Garage: 0
Rooms
- Beds: 2
- Baths: 2
- 1/2 Bath: 0
- 3/4 Bath: 0
Ceiling Height
- Main: 9'-0
- Second:
- Third:
- Loft/Bonus:
- Basement:
- Garage:
Details
- Exterior Walls: 2x6
- Garage Type: none
- Width: 38'-0
- Depth: 32'-0
Roof
- Max Ridge Height: 20'2
- Comments: (From Grade)
- Primary Pitch: 8/12
- Secondary Pitch: 4/12

833–493–0942





















