Plan No.593105
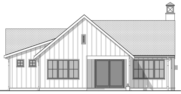
Simple Modern Farmhouse Plan with Side Entry Garage
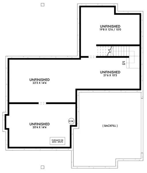
Modesty meets sophistication in this simple modern farmhouse design. This handsome home combines an open concept living area with vaulted ceilings, 2 bedrooms, 2 full baths, large covered patio and double side entry garage with plenty of storage ( or possible garage workshop ). This design has been skillfully crafted by one of our most popular designers. Turn this plan into your next home and you won't be disappointed! Please note, the overall dimensions of the BASEMENT VERSION is 47'0 x 55'0 and the total area is 1388 sq. ft.
Specifications
Total 1300 sq ft
- Main: 1300
- Second: 0
- Third: 0
- Loft/Bonus: 0
- Basement: 0
- Garage: 554
Rooms
- Beds: 2
- Baths: 2
- 1/2 Bath: 0
- 3/4 Bath: 0
Ceiling Height
- Main: 9'0-12'9
- Second:
- Third:
- Loft/Bonus:
- Basement:
- Garage:
Details
- Exterior Walls: 2x6
- Garage Type:
- Width: 47'0
- Depth: 51'0
Roof
- Max Ridge Height: 20'0
- Comments: (Main Floor to Peak)
- Primary Pitch: 10/12
- Secondary Pitch: 7/12
Add to Cart
Pricing
– westhomeplanners.com
– westhomeplanners.com
Optional Basement Stairs – westhomeplanners.com
Opt. Basement – westhomeplanners.com
Night Rendering – westhomeplanners.com
Winter Rendering – westhomeplanners.com
Living Area – westhomeplanners.com
– westhomeplanners.com
– westhomeplanners.com
– westhomeplanners.com
FRONT Elevation – westhomeplanners.com
[Back to Search Results]

833–493–0942









