Plan No.304402
Total Living Area may increase with Basement Foundation option.
Specifications
Total 2044 sq ft
- Main: 2044
- Second: 0
- Third: 0
- Loft/Bonus: 0
- Basement: 0
- Garage: 624
Rooms
- Beds: 3
- Baths: 2
- 1/2 Bath: 1
- 3/4 Bath: 0
Ceiling Height
- Main: 10'0
- Second:
- Third:
- Loft/Bonus:
- Basement:
- Garage:
Details
- Exterior Walls: 2x4
- Garage Type: doubleGarage
- Width: 66'0
- Depth: 63'0
Roof
- Max Ridge Height: 22'0
- Comments: (Main Floor to Peak)
- Primary Pitch: 6/12
- Secondary Pitch: 0/12
Add to Cart
Pricing
– westhomeplanners.com
– westhomeplanners.com
Dusk Rendering – westhomeplanners.com
Opt. Basement stairs – westhomeplanners.com
– westhomeplanners.com
– westhomeplanners.com
– westhomeplanners.com
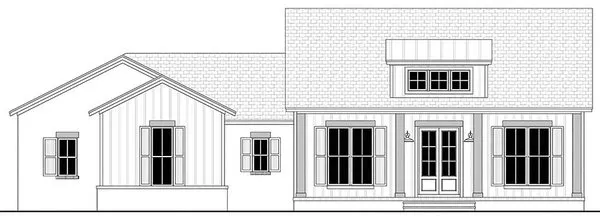
FRONT Elevation – westhomeplanners.com
[Back to Search Results]

833–493–0942






