Plan No.305932
Bonus Area not included in Total Living Area Square Footage. Unlimited License To Build included with CAD file sale. CAD file sale also includes PDF file.
Specifications
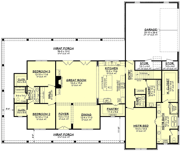
Total 2395 sq ft
- Main: 2395
- Second: 0
- Third: 0
- Loft/Bonus: 546
- Basement: 0
- Garage: 662
Rooms
- Beds: 3
- Baths: 2
- 1/2 Bath: 1
- 3/4 Bath: 0
Ceiling Height
- Main: 10'0
- Second:
- Third:
- Loft/Bonus: 9'0
- Basement:
- Garage:
Details
- Exterior Walls: 2x4
- Garage Type: doubleGarage
- Width: 82'0
- Depth: 68'0
Roof
- Max Ridge Height: 28'0
- Comments: (Main Floor to Peak)
- Primary Pitch: 10/12
- Secondary Pitch: 12/12
Add to Cart
Pricing
– westhomeplanners.com
– westhomeplanners.com
– westhomeplanners.com
– westhomeplanners.com
– westhomeplanners.com
– westhomeplanners.com
[Back to Search Results]

833–493–0942




