Plan No.160133
Outdoor Living
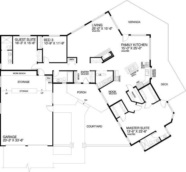
The vaulted master suite and nook gaze upon a beautiful front courtyard, while the vaulted living room and kitchen face a rear veranda. The master bedroom, with dual walk-in closets and ensuite, also has private access to the outside. And additional bedroom and bathroom are located near the guest suite. The large guest suite complete with a private bathroom could also be a charming in-law suite.
Specifications
Total 2192 sq ft
- Main: 2192
- Second: 0
- Third: 0
- Loft/Bonus: 0
- Basement: 0
- Garage: 800
Rooms
- Beds: 3
- Baths: 3
- 1/2 Bath: 0
- 3/4 Bath: 0
Ceiling Height
- Main: 8'0
- Second:
- Third:
- Loft/Bonus:
- Basement:
- Garage: 9'4
Details
- Exterior Walls: 2x4
- Garage Type: doubleGarage
- Width: 79'0
- Depth: 63'9
Roof
- Max Ridge Height: 20'0
- Comments: ()
- Primary Pitch: 6/12
- Secondary Pitch: 0/12
Add to Cart
Pricing
– westhomeplanners.com
– westhomeplanners.com
[Back to Search Results]

833–493–0942
