Plan No.317591
Perfect Kitchen for Entertaining
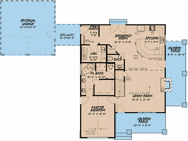
The charming craftsman bungalow appeal and covered front porch welcomes friends and family alike into your new home. Making your way inside through the front door you will find yourself in the spacious great room met by the stairs leading to the upper floor. This great room displays a beautiful fireplace, perfect for enjoying a roaring fire on chilly winter evenings. An open floor plan allows the great room to flow into the large kitchen. These spaces have the perfect amount of visual divide from the differing ceilings while not being encumbered by walls. This open floor plan will allow for more family time and better entertaining! The kitchen features a huge angle peninsula giving you plenty of counter space and bar seating as will as a pantry for added storage. A breakfast room is located just off the kitchen and leads to the convenient mudroom and laundry room. The master suite is the only bedroom located on the main floor and has plenty of amenities to offer. A vaulted ceiling in the bedroom adds elegance and charm while the beautiful is continues in the bathroom with a free standing tub. Upstairs is bedroom 2 with a step in closet and bedrooms 3 with 2 separate closets. These bedrooms share a full bath located in the hallway.
Specifications
Total 1957 sq ft
- Main: 1353
- Second: 604
- Third: 0
- Loft/Bonus: 0
- Basement: 0
- Garage: 0
Rooms
- Beds: 3
- Baths: 2
- 1/2 Bath: 1
- 3/4 Bath: 0
Ceiling Height
- Main: 9'0
- Second: 8'0
- Third:
- Loft/Bonus:
- Basement:
- Garage:
Details
- Exterior Walls: 2x4
- Garage Type: doubleGarage
- Width: 42'2
- Depth: 45'6
Roof
- Max Ridge Height: 26'0
- Comments: (Main Floor to Peak)
- Primary Pitch: 10/12
- Secondary Pitch: 0/12

833–493–0942




