Plan No.242012
Two Storey High Livingroom
All plans have the following as a part of every plan; Slab foundation is standard (crawl space and basement foundations are available for an additional fee of $195.00 each), 2 x 4 stud construction exterior walls standard (2x6 option $195.00), common frame roof (30/20 load design) with a note option for Roof Trusses. The ceiling heights and room sizes are shown on the artist floorplan. Plans files are emailed to the customer in PDF or CAD (Softplan, DWG or DXF) format. All plans are Unlimited Build. ADDITIONAL INFORMATION: Master Closet – 9 x 6, Master Bath – 9 x 9-6, Foyer – 6 x 5-6, Utility Room – 6 x 10-4, Bathroom 1 – 8-4 x 5, Bathroom 2 – 5 x 5, Pantry – 5 x 5, Kitchen Island – 4 x 9.
Specifications
Total 2102 sq ft
- Main: 1572
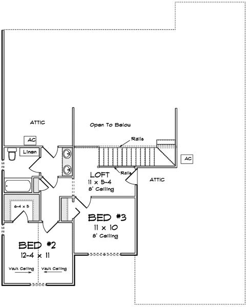
 - Second: 530
 - Third: 0
 - Loft/Bonus: 0
 - Basement: 0
 - Garage: 454
 
Rooms
- Beds: 4
 - Baths: 3
 - 1/2 Bath: 0
 - 3/4 Bath: 0
 
Ceiling Height
- Main: 9'0-18'0
 - Second: 8'0
 - Third:
 - Loft/Bonus:
 - Basement:
 - Garage:
 
Details
- Exterior Walls: 2x4
 - Garage Type: 2 Car Garage
 - Width: 44'0
 - Depth: 55'0
 
Roof
- Max Ridge Height: 27'8
 - Comments: (Main Floor to Peak)
 - Primary Pitch: 8/12
 - Secondary Pitch: 8/12
 
		Add to Cart
		Pricing
			
		
	
		
	
	
	Full Rendering – westhomeplanners.com
	
	
	
	
	MAIN Plan – westhomeplanners.com
	
	
	
	
	SECOND Plan – westhomeplanners.com
	
	
	
	
	Front Porch – westhomeplanners.com
	
	
	
	
	Front & Right – westhomeplanners.com
	
	
	
	
	Right & Rear – westhomeplanners.com
	
	
	
	
	Rear & Left – westhomeplanners.com
	
	
	
	
	Left & Front – westhomeplanners.com
	
	
	
	
	From Above – westhomeplanners.com
	
	
	
	
	3D Main Floor – westhomeplanners.com
	
	
	
	
	3D Second Floor – westhomeplanners.com
	
	
		
		
	[Back to Search Results]

 833–493–0942









