Plan No.637871
Ranch Offers Country Elegance
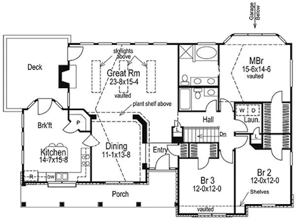
This Country Ranch Home has 3 bedrooms and 2 full baths. The large great room with stylish fireplace and vaulted ceiling features three large skylights and windows galore. Cooking is sure to be a pleasure in this L-shaped well-appointed kitchen which includes a bayed breakfast area with access to the rear deck. Every bedroom offers a spacious walk-in closet with a convenient laundry room just steps away.
Specifications
Total 1787 sq ft
- Main: 1787
- Second: 0
- Third: 0
- Loft/Bonus: 0
- Basement: 1787
- Garage: 475
Rooms
- Beds: 3
- Baths: 2
- 1/2 Bath: 0
- 3/4 Bath: 0
Ceiling Height
- Main:
- Second:
- Third:
- Loft/Bonus:
- Basement:
- Garage:
Details
- Exterior Walls: 2x4
- Garage Type: doubleGarage
- Width: 59'8
- Depth: 40'0
Roof
- Max Ridge Height:
- Comments: ()
- Primary Pitch: 0/12
- Secondary Pitch: 0/12
Add to Cart
Pricing
– westhomeplanners.com
3D Floor Plan – westhomeplanners.com
– westhomeplanners.com
– westhomeplanners.com
Kitchen – westhomeplanners.com
– westhomeplanners.com
– westhomeplanners.com
– westhomeplanners.com
[Back to Search Results]

833–493–0942






