Plan No.112703
European Flair
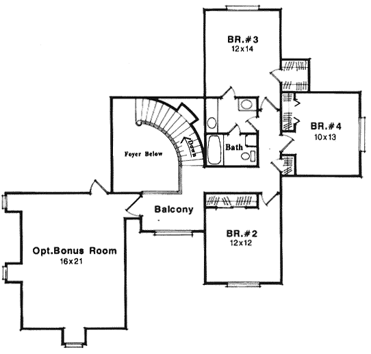
This grand family home has a European flair to the exterior and a multi-featured interior design. The second floor is set up beautifully for the kids with three large bedrooms, a split bath and a bonus or play room. The balcony could serve as a space for the family computer. The beautiful Master Suite on the main floor is very spacious and fully appointed.
Specifications
Total 3072 sq ft
- Main: 2229
- Second: 843
- Third: 0
- Loft/Bonus: 374
- Basement: 0
- Garage: 504
Rooms
- Beds: 4
- Baths: 2
- 1/2 Bath: 1
- 3/4 Bath: 0
Ceiling Height
- Main: 9'0
- Second: 8'0
- Third:
- Loft/Bonus: 8'0
- Basement:
- Garage: 10'4
Details
- Exterior Walls: 2x4
- Garage Type: doubleGarage
- Width: 62'0
- Depth: 62'0
Roof
- Max Ridge Height:
- Comments: ()
- Primary Pitch: 12/12
- Secondary Pitch: 0/12
Add to Cart
Pricing
– westhomeplanners.com
– westhomeplanners.com
– westhomeplanners.com
[Back to Search Results]

833–493–0942

