Plan No.695902
Specifications
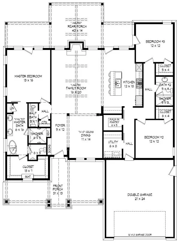
Total 2095 sq ft
- Main: 2095
- Second: 0
- Third: 0
- Loft/Bonus: 0
- Basement: 0
- Garage: 560
Rooms
- Beds: 3
- Baths: 2
- 1/2 Bath: 0
- 3/4 Bath: 0
Ceiling Height
- Main: 9'0
- Second:
- Third:
- Loft/Bonus:
- Basement:
- Garage:
Details
- Exterior Walls: 2x6
- Garage Type: doubleGarage
- Width: 54'0
- Depth: 74'0
Roof
- Max Ridge Height: 20'6
- Comments: (Main Floor to Peak)
- Primary Pitch: 6/12
- Secondary Pitch: 8/12
Add to Cart
Pricing
– westhomeplanners.com
– westhomeplanners.com
– westhomeplanners.com
– westhomeplanners.com
– westhomeplanners.com
[Back to Search Results]

833–493–0942



