Plan No.144162
Beautiful Craftsman Design
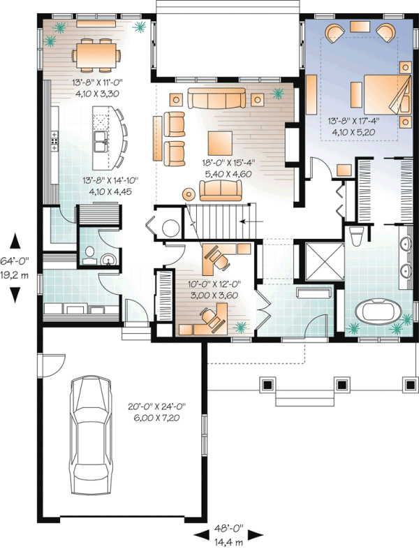
Beautiful Craftsman design featuring; 4 bedrooms, home office for 2, open floor plan, pantry. 1st level: Entry, home office, master suite, living room, kitchen and dinette, dining room, half-bath, laundry room and 2-car garage. 2nd level: Three bedrooms and two shower rooms. Distinctive elements include; 9' ceiling on main floor and more than 18' in living room. Fireplace and built-in in living room. Remarquable master suite with walk-in closet and large bathroom with a 5' x 5' shower. Four bedroom home, with three on second level sharing two shower rooms. Home office located near the main entrance.
Specifications
Total 2614 sq ft
- Main: 1811
- Second: 803
- Third: 0
- Loft/Bonus: 0
- Basement: 0
- Garage: 512
Rooms
- Beds: 4
- Baths: 3
- 1/2 Bath: 1
- 3/4 Bath: 0
Ceiling Height
- Main: 9'0
- Second: 8'0
- Third:
- Loft/Bonus:
- Basement:
- Garage:
Details
- Exterior Walls: 2x6
- Garage Type: doubleGarage
- Width: 48'0
- Depth: 64'0
Roof
- Max Ridge Height: 27'9
- Comments: (Main Floor to Peak)
- Primary Pitch: 0/12
- Secondary Pitch: 0/12
Add to Cart
Pricing
– westhomeplanners.com
– westhomeplanners.com
– westhomeplanners.com
– westhomeplanners.com
[Back to Search Results]

833–493–0942


