Plan No.717632
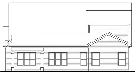
Traditional House Plan has Attractive Craftsman Details
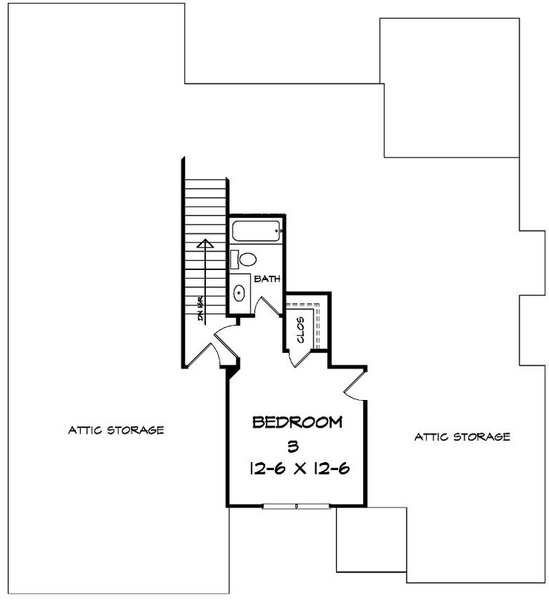
Craftsman like details adorn this traditional house plan. Features include; 3 beds, 3 baths, arts and crafts details, formal dining at entry, master and bedroom 2 on the first floor, drop zone, breakfast nook, kitchen island bar top, vaulted ceilings, 2066 square feet, a third bedroom up, a covered terrace and two car forward facing garage.
Specifications
Total 2066 sq ft
- Main: 1764
- Second: 302
- Third: 0
- Loft/Bonus: 0
- Basement: 0
- Garage: 0
Rooms
- Beds: 3
- Baths: 3
- 1/2 Bath: 0
- 3/4 Bath: 0
Ceiling Height
- Main: 9'0
- Second: 8'0
- Third:
- Loft/Bonus:
- Basement:
- Garage:
Details
- Exterior Walls: 2x4
- Garage Type: doubleGarage
- Width: 50'0
- Depth: 55'0
Roof
- Max Ridge Height: 27'3
- Comments: (Main Floor to Peak)
- Primary Pitch: 12/12
- Secondary Pitch: 0/12
Add to Cart
Pricing
– westhomeplanners.com
– westhomeplanners.com
– westhomeplanners.com
– westhomeplanners.com
– westhomeplanners.com
– westhomeplanners.com
[Back to Search Results]

833–493–0942




