Plan No.289991
Specifications
Total 1999 sq ft
- Main: 1999
- Second: 0
- Third: 0
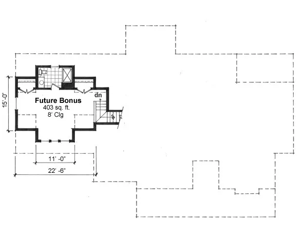
- Loft/Bonus: 403
- Basement: 1999
- Garage: 484
Rooms
- Beds: 3
- Baths: 2
- 1/2 Bath: 1
- 3/4 Bath: 0
Ceiling Height
- Main: 10'0
- Second:
- Third:
- Loft/Bonus:
- Basement:
- Garage:
Details
- Exterior Walls: 2x6
- Garage Type: doubleGarage
- Width: 78'6
- Depth: 54'0
Roof
- Max Ridge Height: 26'6
- Comments: (Main Floor to Peak)
- Primary Pitch: 9/12
- Secondary Pitch: 0/12
Add to Cart
Pricing
– westhomeplanners.com
– westhomeplanners.com
– westhomeplanners.com
Front & Left Elevn – westhomeplanners.com
Front & Right Elevn – westhomeplanners.com
– westhomeplanners.com
[Back to Search Results]

833–493–0942




