Plan No.195322
Two Storey Country Comfort
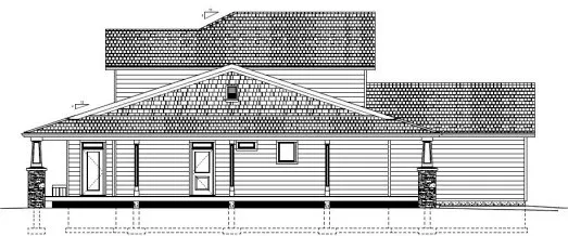
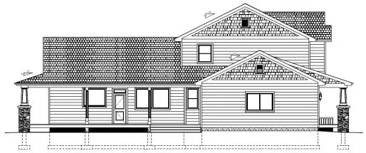
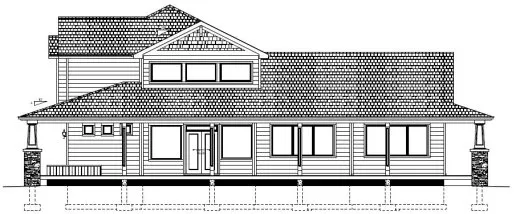
This elegant two-storey country style home features all the amenities. A large great room with an open ceiling to the second floor, a separate family room, a spacious master suite, and a wrap-around verandah.
Specifications
Total 3087 sq ft
- Main: 2301
- Second: 786
- Third: 0
- Loft/Bonus: 0
- Basement: 0
- Garage: 624
Rooms
- Beds: 3
- Baths: 2
- 1/2 Bath: 1
- 3/4 Bath: 0
Ceiling Height
- Main: 9'0
- Second: 9'0
- Third:
- Loft/Bonus:
- Basement:
- Garage:
Details
- Exterior Walls: 2x6
- Garage Type: doubleGarage
- Width: 72'0
- Depth: 72'0
Roof
- Max Ridge Height: 28'6
- Comments: ()
- Primary Pitch: 6/12
- Secondary Pitch: 4/12
Add to Cart
Pricing
– westhomeplanners.com
– westhomeplanners.com
– westhomeplanners.com
– westhomeplanners.com
– westhomeplanners.com
– westhomeplanners.com
FRONT Elevation – westhomeplanners.com
[Back to Search Results]

833–493–0942





