Plan No.137159
Light-filled Interior
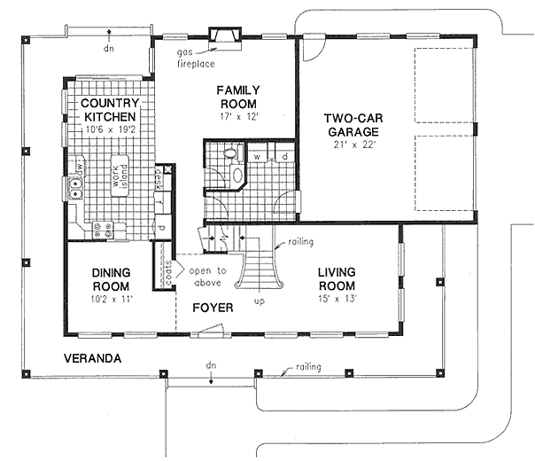
A stylish traditional exterior and an open light-filled interior with a two story high Foyer and Livingroom define this two-level home. A wrap-around Porch greets your entry into this spectacular design, a beautiful spindled staircase with an over-looking second floor hall leads you to a wonderful Master Suite complete with Ensuite Bath and a Walk-in Closet.
Specifications
Total 2097 sq ft
- Main: 1163
- Second: 934
- Third: 0
- Loft/Bonus: 0
- Basement: 1163
- Garage: 462
Rooms
- Beds: 4
- Baths: 2
- 1/2 Bath: 1
- 3/4 Bath: 0
Ceiling Height
- Main: 8'0
- Second: 8'0
- Third:
- Loft/Bonus:
- Basement: 8'0
- Garage: 9'4
Details
- Exterior Walls: 2x6
- Garage Type: doubleGarage
- Width: 55'0
- Depth: 41'6
Roof
- Max Ridge Height: 26'0
- Comments: ()
- Primary Pitch: 6/12
- Secondary Pitch: 0/12
Add to Cart
Pricing
– westhomeplanners.com
– westhomeplanners.com
– westhomeplanners.com
– westhomeplanners.com
[Back to Search Results]

833–493–0942


