Plan No.510520
French Doors to Deck
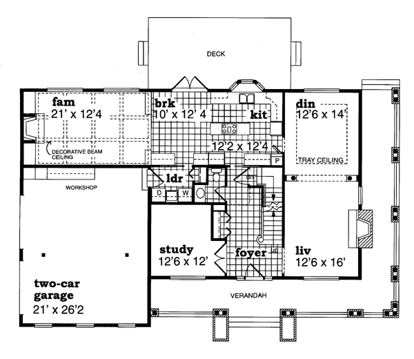
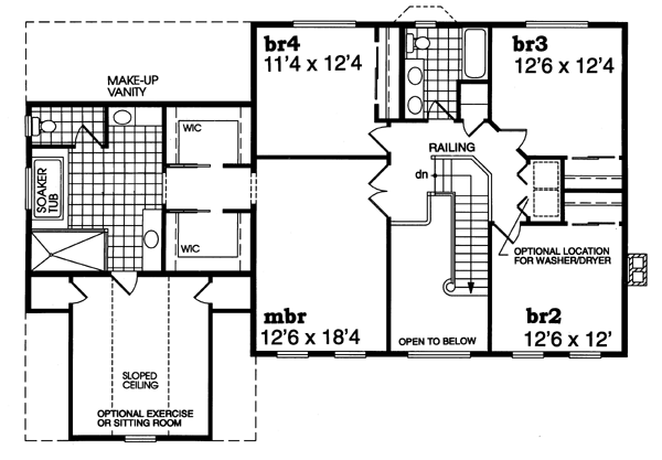
Choose from one of two exteriors for this grand design--a lovely wood-sided farmhouse or a stately brick traditional. PLANS INCLUDE DETAILS FOR BOTH FACADES. Special moldings and trim add interest to the nine-foot ceilings on the first floor. The dining room features a tray ceiling and is separated from the hearth-warmed living room by decorative columns. A study is secluded behind double doors just off the entry. The centrally located kitchen features a large cooking island, pantry, telephone desk, and ample cupboard and counter space. The family room has a decorative beam ceiling and fireplace. The private master bedroom has a most exquisite bath with His and Hers walk-in closets, a soaking tub, separate shower, and make-up vanity. An optional exercise/sitting room adds 241 square feet to the total. Family bedrooms share a full bath.
Specifications
Total 2858 sq ft
- Main: 1439
- Second: 1419
- Third: 0
- Loft/Bonus: 241
- Basement: 0
- Garage: 0
Rooms
- Beds: 4
- Baths: 2
- 1/2 Bath: 1
- 3/4 Bath: 0
Ceiling Height
- Main: 9'0
- Second: 8'0
- Third:
- Loft/Bonus: 8'0
- Basement:
- Garage:
Details
- Exterior Walls: 2x6
- Garage Type: doubleGarage
- Width: 64'0
- Depth: 41'0
Roof
- Max Ridge Height: 32'0
- Comments: (Main Fl to Peak)
- Primary Pitch: 8/12
- Secondary Pitch: 0/12

833–493–0942



