Plan No.318831
Spacious Hillside Rancher
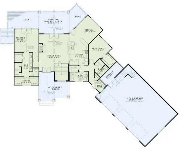
This spacious split-bedroom, rustic home features a 3-car garage and a massive rear grilling deck. The large front covered porch has stone based timber columns and a vaulted ceiling. Once inside, you’re welcomed into the Great Room with its cozy fireplace, vaulted ceiling, and French doors leading to the Grilling Porch. It’s also open to the kitchen featuring a large eat-at island bar and a convenient eat-at bar on a 45 degree angle separating the kitchen from the Dining Room. Luxury awaits you in the Master Suite with its vaulted ceilings and French doors to the deck, while the bathroom provides 2 walk-in closets and a huge shower. Bedroom 2 is located on the opposite side with its own adjacent full bath and a large walk-in closet. Downstairs completes the dream with Bedrooms 3 and 4, their own full bathrooms and huge walk-in closets. The massive Game Room has a wet bar and French doors to the covered patio. There’s even a Hobby Room and a huge unfinished area offering endless possibilities.
Specifications
Total 3140 sq ft
- Main: 2029
- Second: 0
- Third: 0
- Loft/Bonus: 0
- Basement: 1111
- Garage: 1451
Rooms
- Beds: 4
- Baths: 4
- 1/2 Bath: 0
- 3/4 Bath: 0
Ceiling Height
- Main: 10'0
- Second:
- Third:
- Loft/Bonus:
- Basement: 9'0
- Garage:
Details
- Exterior Walls: 2x4
- Garage Type: tripleGarage
- Width: 104'5
- Depth: 86'7
Roof
- Max Ridge Height: 22'8
- Comments: ()
- Primary Pitch: 8/12
- Secondary Pitch: 10/12

833–493–0942


