Plan No.121375
View similar Plan 128876.
Specifications
Total 3140 sq ft
- Main: 1553
- Second: 1587
- Third: 0
- Loft/Bonus: 0
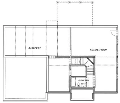
- Basement: 1553
- Garage: 484
Rooms
- Beds: 5
- Baths: 4
- 1/2 Bath: 0
- 3/4 Bath: 0
Ceiling Height
- Main: 9'0
- Second: 8'0
- Third:
- Loft/Bonus:
- Basement: 8'0
- Garage: 10'4
Details
- Exterior Walls: 2x4
- Garage Type: doubleGarage
- Width: 58'0
- Depth: 41'4
Roof
- Max Ridge Height: 34'0
- Comments: ()
- Primary Pitch: 10/12
- Secondary Pitch: 12/12
Add to Cart
Pricing
– westhomeplanners.com
– westhomeplanners.com
– westhomeplanners.com
– westhomeplanners.com
Staircase from Foyer – westhomeplanners.com
Staircase thru to Kitchen – westhomeplanners.com
Family Room Overlook – westhomeplanners.com
Family Room Below – westhomeplanners.com
Kitchen – westhomeplanners.com
– westhomeplanners.com
[Back to Search Results]

833–493–0942








