Plan No.537930
Family Activity Center
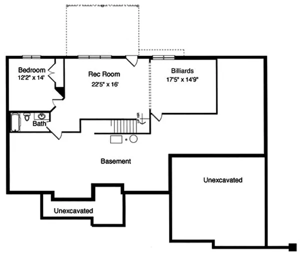
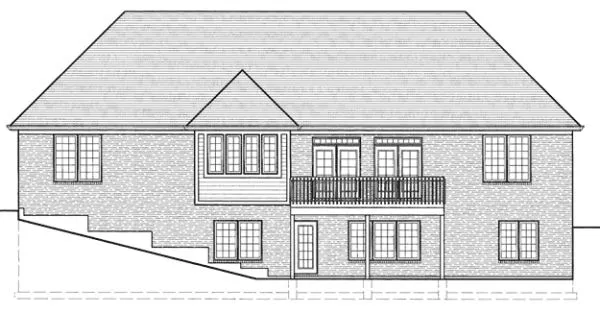
A great room with 12' ceiling height, informal dining and a kitchen with snack bar combine to form the family activity center on this beautiful one level home. A formal dining room and library compliment the entry and the brick and stone exterior showcase a spectacular curb appeal. Split bedrooms provide privacy to the master bedroom suite while a luxurious bath pampers the homeowner. A full basement with walkout to the rear offers additional space that can be finished for a fourth bedroom, bath and recreation room.
Specifications
Total 2341 sq ft
- Main: 2341
- Second: 0
- Third: 0
- Loft/Bonus: 0
- Basement: 2341
- Garage: 542
Rooms
- Beds: 3
- Baths: 2
- 1/2 Bath: 0
- 3/4 Bath: 0
Ceiling Height
- Main:
- Second:
- Third:
- Loft/Bonus:
- Basement:
- Garage:
Details
- Exterior Walls: 2x4
- Garage Type: doubleGarage
- Width: 69'2
- Depth: 53'0
Roof
- Max Ridge Height:
- Comments: ()
- Primary Pitch: 0/12
- Secondary Pitch: 0/12
Add to Cart
Pricing
– westhomeplanners.com
– westhomeplanners.com
– westhomeplanners.com
– westhomeplanners.com
[Back to Search Results]

833–493–0942


