Plan No.537910
Warm and Charming Showplace
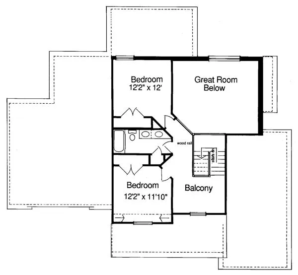
A variety of exterior materials is excellently coordinated to transform this traditionally styled home into a warm and charming showplace. At the entry an open stair rail decorates the foyer and a secluded hall leads to the private Master bedroom suite with sloped ceiling and deluxe bath. The spacious kitchen provides an abundance of counter space and cabinets, a peninsula with seating and efficient service to the Breakfast and Dining Room. The Laundry Room is discreetly located to allow order and quiet to prevail throughout the home. Dramatic views to the Great Room are provided at the landing and 2nd floor balcony where there is ample room for a computer area or reading / library loft. Two bedrooms and a bath complete this spectacular home.
Specifications
Total 2017 sq ft
- Main: 1432
- Second: 585
- Third: 0
- Loft/Bonus: 0
- Basement: 0
- Garage: 420
Rooms
- Beds: 3
- Baths: 2
- 1/2 Bath: 1
- 3/4 Bath: 0
Ceiling Height
- Main:
- Second:
- Third:
- Loft/Bonus:
- Basement:
- Garage:
Details
- Exterior Walls: 2x4
- Garage Type: doubleGarage
- Width: 64'0
- Depth: 48'0
Roof
- Max Ridge Height:
- Comments: ()
- Primary Pitch: 0/12
- Secondary Pitch: 0/12

833–493–0942


