Plan No.282044
Please note that the basement includes 539 sq. ft. of unfinished space which is not included in the total living space.
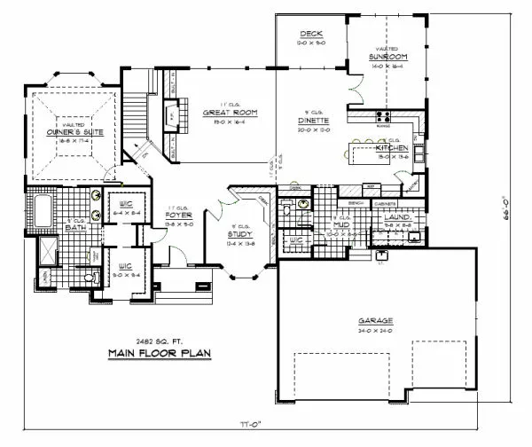
Specifications
Total 4425 sq ft
- Main: 2482
- Second: 0
- Third: 0
- Loft/Bonus: 0
- Basement: 1943
- Garage: 838
Rooms
- Beds: 3
- Baths: 2
- 1/2 Bath: 1
- 3/4 Bath: 0
Ceiling Height
- Main: 9'0
- Second:
- Third: 9'0
- Loft/Bonus:
- Basement:
- Garage: 10'4
Details
- Exterior Walls: 2x6
- Garage Type: tripleGarage
- Width: 77'0
- Depth: 66'0
Roof
- Max Ridge Height: 25'0
- Comments: (Main Floor to Peak)
- Primary Pitch: 9/12
- Secondary Pitch: 12/12
Add to Cart
Pricing
– westhomeplanners.com
– westhomeplanners.com
– westhomeplanners.com
– westhomeplanners.com
– westhomeplanners.com
[Back to Search Results]

833–493–0942



