Plan No.335992
Specifications
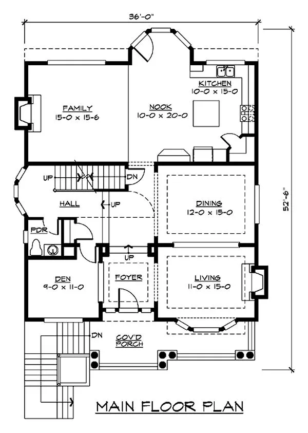
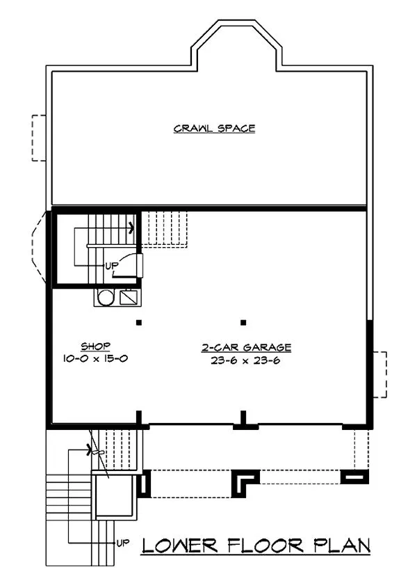
Total 2995 sq ft
- Main: 1490
- Second: 1415
- Third: 0
- Loft/Bonus: 0
- Basement: 0
- Garage: 792
Rooms
- Beds: 3
- Baths: 2
- 1/2 Bath: 1
- 3/4 Bath: 0
Ceiling Height
- Main:
- Second:
- Third:
- Loft/Bonus:
- Basement:
- Garage:
Details
- Exterior Walls: 2x6
- Garage Type: doubleGarage
- Width: 36'0
- Depth: 53'0
Roof
- Max Ridge Height: 30'6
- Comments: ()
- Primary Pitch: 8/12
- Secondary Pitch: 4/12
Add to Cart
Pricing
– westhomeplanners.com
– westhomeplanners.com
– westhomeplanners.com
– westhomeplanners.com
– westhomeplanners.com
[Back to Search Results]

833–493–0942



