Plan No.195143
Country Living
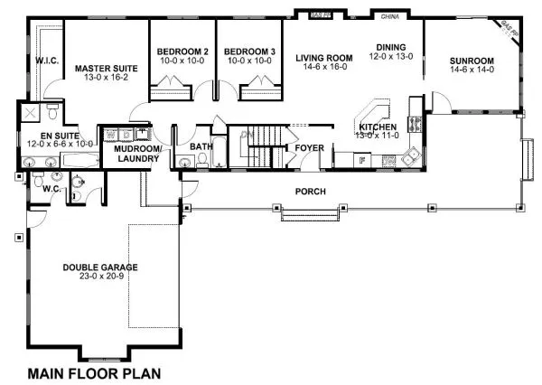
This country-style home features a large covered porch, an open living area, a spacious master suite, and a sunroom.
Specifications
Total 2794 sq ft
- Main: 1746
- Second: 0
- Third: 0
- Loft/Bonus: 0
- Basement: 1048
- Garage: 676
Rooms
- Beds: 5
- Baths: 2
- 1/2 Bath: 1
- 3/4 Bath: 0
Ceiling Height
- Main: 9'0
- Second:
- Third:
- Loft/Bonus:
- Basement: 8'0
- Garage: 10'4
Details
- Exterior Walls: 2x6
- Garage Type: doubleGarage
- Width: 77'0
- Depth: 53'6
Roof
- Max Ridge Height: 20'8
- Comments: ()
- Primary Pitch: 8/12
- Secondary Pitch: 4/12
Add to Cart
Pricing
– westhomeplanners.com
– westhomeplanners.com
– westhomeplanners.com
– westhomeplanners.com
[Back to Search Results]

833–493–0942


