Plan No.500042
Specifications
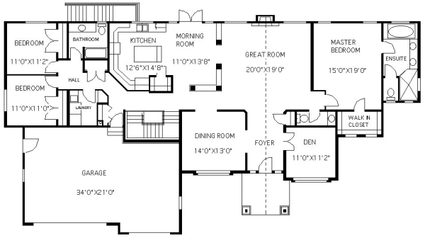
Total 2533 sq ft
- Main: 2533
- Second: 0
- Third: 0
- Loft/Bonus: 0
- Basement: 2533
- Garage: 737
Rooms
- Beds: 3
- Baths: 2
- 1/2 Bath: 0
- 3/4 Bath: 0
Ceiling Height
- Main: 10'0
- Second:
- Third:
- Loft/Bonus:
- Basement: 8'0
- Garage:
Details
- Exterior Walls: 2x6
- Garage Type: doubleGarage
- Width: 91'6
- Depth: 47'0
Roof
- Max Ridge Height: 25'10
- Comments: ()
- Primary Pitch: 9/12
- Secondary Pitch: 0/12
Add to Cart
Pricing
– westhomeplanners.com
– westhomeplanners.com
[Back to Search Results]

833–493–0942
