Plan No.454501
Specifications
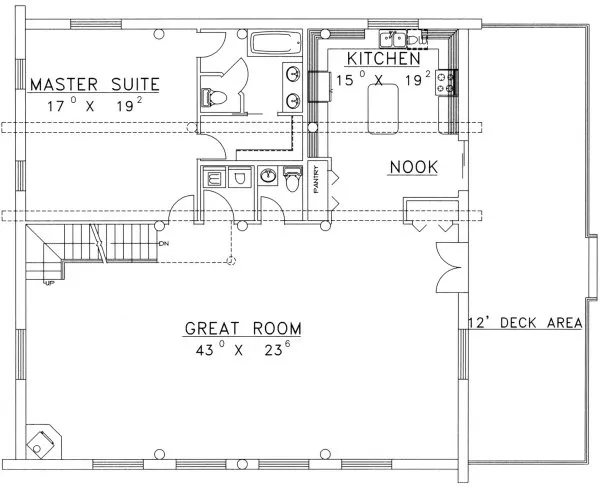
Total 2861 sq ft
- Main: 1936
- Second: 925
- Third: 0
- Loft/Bonus: 0
- Basement: 1995
- Garage: 0
Rooms
- Beds: 3
- Baths: 3
- 1/2 Bath: 1
- 3/4 Bath: 0
Ceiling Height
- Main: 8'0
- Second:
- Third:
- Loft/Bonus:
- Basement:
- Garage:
Details
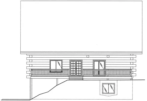
- Exterior Walls: Log
- Garage Type:
- Width: 56'6
- Depth: 47'11
Roof
- Max Ridge Height: 43'1
- Comments: (Main Floor to Peak)
- Primary Pitch: 10/12
- Secondary Pitch: 0/12
Add to Cart
Pricing
– westhomeplanners.com
– westhomeplanners.com
– westhomeplanners.com
– westhomeplanners.com
– westhomeplanners.com
[Back to Search Results]

833–493–0942



