Plan No.411199
Abundance of Windows
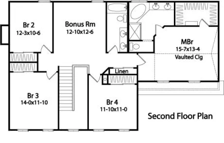
An abundance of windows and a covered wrap-around porch enhance this classic two-story home. The family room and kitchen/breakfast area combine for a sizable gathering area. The study is perfect for a home office. Vaulted ceilings, a walk-in closet and deluxe bath with whirlpool tub enhance the master bedroom. An upper level bonus space is flexible to meet family needs.
Specifications
Total 2458 sq ft
- Main: 1034
- Second: 1424
- Third: 0
- Loft/Bonus: 0
- Basement: 1034
- Garage: 378
Rooms
- Beds: 4
- Baths: 2
- 1/2 Bath: 1
- 3/4 Bath: 0
Ceiling Height
- Main: 8'0
- Second: 8'0
- Third:
- Loft/Bonus:
- Basement: 8'0
- Garage: 9'4
Details
- Exterior Walls: 2x4
- Garage Type: doubleGarage
- Width: 58'0
- Depth: 38'0
Roof
- Max Ridge Height: 27'0
- Comments: ()
- Primary Pitch: 6/12
- Secondary Pitch: 4/12
Add to Cart
Pricing
– westhomeplanners.com
– westhomeplanners.com
– westhomeplanners.com
– westhomeplanners.com
– westhomeplanners.com
– westhomeplanners.com
[Back to Search Results]

833–493–0942




