Plan No.348813
Space Awash With Light
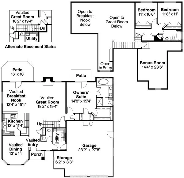
Stucco detailing, circular windows, corner quoins and elliptical arches catch the eye immediately. A lofty vaulted ceiling overarches the entry, breakfast nook and great room, and the entire space is awash with light. A raised eating bar divides the roomy kitchen from the window-rich nook.
Specifications
Total 2198 sq ft
- Main: 1725
- Second: 473
- Third: 0
- Loft/Bonus: 0
- Basement: 0
- Garage: 721
Rooms
- Beds: 3
- Baths: 2
- 1/2 Bath: 1
- 3/4 Bath: 0
Ceiling Height
- Main: 9'0
- Second:
- Third:
- Loft/Bonus:
- Basement:
- Garage:
Details
- Exterior Walls: 2x6
- Garage Type: doubleGarage
- Width: 56'0
- Depth: 50'0
Roof
- Max Ridge Height: 28'6
- Comments: ()
- Primary Pitch: 9/12
- Secondary Pitch: 0/12
Add to Cart
Pricing
– westhomeplanners.com
First&Second Floor – westhomeplanners.com
– westhomeplanners.com
[Back to Search Results]

833–493–0942

