Plan No.346413
Corner Quoins
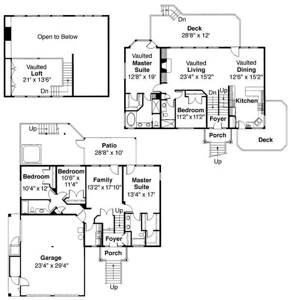
Corner quoins, varied window treatment create visual appeal. Country kitchen has windowed nook, pantry, raised eating bar. Large and small walk-ins in masters suite with private patio
Specifications
Total 3141 sq ft
- Main: 1490
- Second: 1290
- Third: 0
- Loft/Bonus: 361
- Basement: 0
- Garage: 732
Rooms
- Beds: 5
- Baths: 3
- 1/2 Bath: 0
- 3/4 Bath: 1
Ceiling Height
- Main: 9'0
- Second:
- Third:
- Loft/Bonus:
- Basement:
- Garage:
Details
- Exterior Walls: 2x6
- Garage Type: doubleGarage
- Width: 64'0
- Depth: 63'4
Roof
- Max Ridge Height: 30'4
- Comments: ()
- Primary Pitch: 5/12
- Secondary Pitch: 0/12
Add to Cart
Pricing
– westhomeplanners.com
First&Second Floor – westhomeplanners.com
– westhomeplanners.com
[Back to Search Results]

833–493–0942

