Plan No.342513
Stone Supports
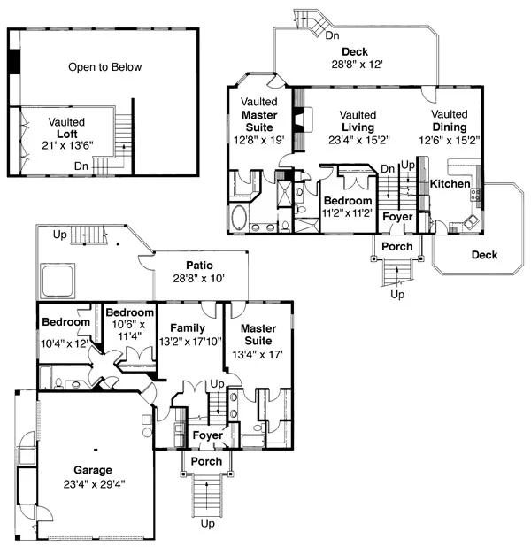
Stone supports, low gables with stickwork accent tri-level plan. Main floor with vaulted living & dining rooms, half-flight up. Three bedrooms, plus utility and large family room, half-flight down
Specifications
Total 3141 sq ft
- Main: 1490
- Second: 1290
- Third: 0
- Loft/Bonus: 0
- Basement: 0
- Garage: 732
Rooms
- Beds: 5
- Baths: 4
- 1/2 Bath: 0
- 3/4 Bath: 0
Ceiling Height
- Main: 8'9
- Second:
- Third:
- Loft/Bonus:
- Basement:
- Garage:
Details
- Exterior Walls: 2x6
- Garage Type: tripleGarage
- Width: 64'0
- Depth: 63'4
Roof
- Max Ridge Height: 30'4
- Comments: ()
- Primary Pitch: 5/12
- Secondary Pitch: 0/12
Add to Cart
Pricing
– westhomeplanners.com
– westhomeplanners.com
– westhomeplanners.com
[Back to Search Results]

833–493–0942

