Plan No.412352
Designed for Functionality
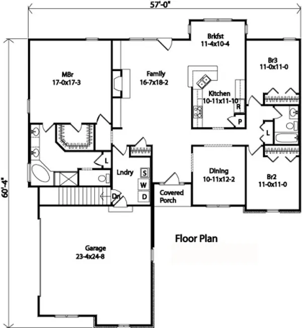
This single story offers amenities for functionality of daily living. Built-ins flank the fireplace in the family room. A centrally located kitchen serves the breakfast room and formal dining room with ease. The laundry/mud room is located near the garage for convenience. Split bedrooms offer privacy to the master suite, which enjoys a walk-in closet and elegant bath complete with whirlpool tub and double vanities. For an alternate version of this plan with a front-load garage, please see plan #413352.
Specifications
Total 1993 sq ft
- Main: 1993
- Second: 0
- Third: 0
- Loft/Bonus: 0
- Basement: 1993
- Garage: 575
Rooms
- Beds: 3
- Baths: 2
- 1/2 Bath: 0
- 3/4 Bath: 0
Ceiling Height
- Main: 8'0
- Second:
- Third:
- Loft/Bonus:
- Basement: 8'0
- Garage: 9'4
Details
- Exterior Walls: 2x4
- Garage Type: doubleGarage
- Width: 57'0
- Depth: 60'4
Roof
- Max Ridge Height: 21'4
- Comments: ()
- Primary Pitch: 8/12
- Secondary Pitch: 10/12
Add to Cart
Pricing
– westhomeplanners.com
– westhomeplanners.com
– westhomeplanners.com
– westhomeplanners.com
– westhomeplanners.com
[Back to Search Results]

833–493–0942



