Plan No.349051
Natural Environment
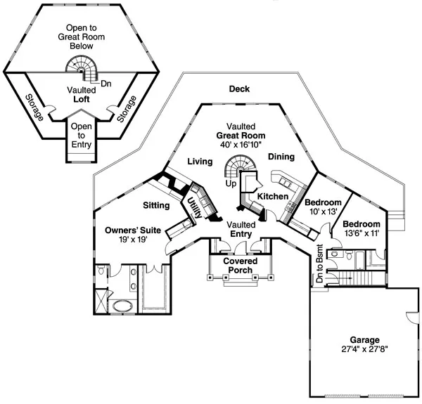
Cedar shakes give it a hand-crafted look that blends into the natural environment .A Vaulted hexagonal great room at its core; great vistas from almost every room. Spiral staircase at center circles up to wide loft that caps the half of the great room.
Specifications
Total 2635 sq ft
- Main: 2372
- Second: 263
- Third: 0
- Loft/Bonus: 0
- Basement: 2277
- Garage: 784
Rooms
- Beds: 3
- Baths: 2
- 1/2 Bath: 0
- 3/4 Bath: 0
Ceiling Height
- Main: 9'0
- Second:
- Third:
- Loft/Bonus:
- Basement:
- Garage:
Details
- Exterior Walls: 2x6
- Garage Type: doubleGarage
- Width: 83'0
- Depth: 75'0
Roof
- Max Ridge Height: 22'9
- Comments: ()
- Primary Pitch: 6/12
- Secondary Pitch: 0/12
Add to Cart
Pricing
– westhomeplanners.com
First&Second Floor – westhomeplanners.com
– westhomeplanners.com
[Back to Search Results]

833–493–0942

