Plan No.417152
Unique Craftsman
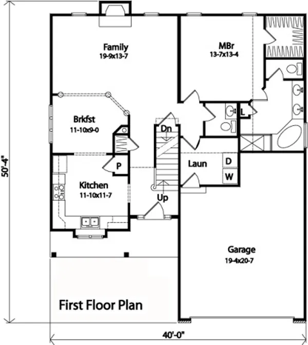
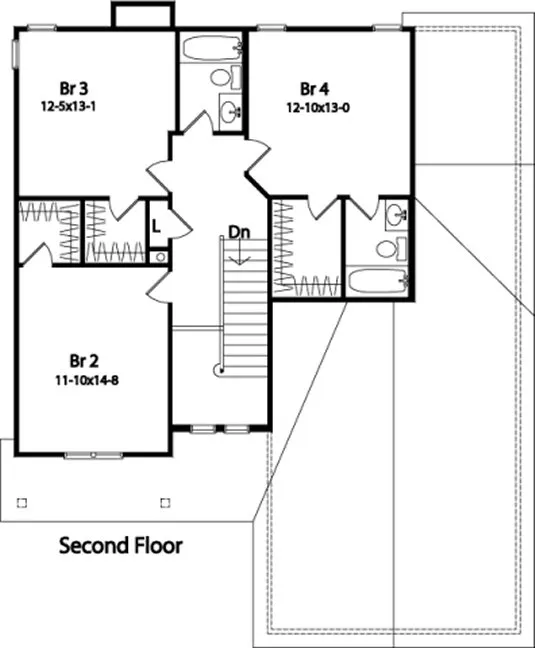
Unique features are included in the design of this craftsman style two-story. A front shed dormer enhances curb appeal. The generously sized kitchen overlooks the front porch. Columns accent the breakfast room where it joins the family room. A luxury bath and walk-in closet are featured in the master bedroom. Three upstairs bedrooms enjoy walk-in closets.
Specifications
Total 1999 sq ft
- Main: 1157
- Second: 842
- Third: 0
- Loft/Bonus: 0
- Basement: 1157
- Garage: 410
Rooms
- Beds: 4
- Baths: 3
- 1/2 Bath: 1
- 3/4 Bath: 0
Ceiling Height
- Main: 8'0
- Second: 8'0
- Third:
- Loft/Bonus:
- Basement: 8'0
- Garage: 9'4
Details
- Exterior Walls: 2x4
- Garage Type: doubleGarage
- Width: 40'0
- Depth: 50'4
Roof
- Max Ridge Height: 30'6
- Comments: ()
- Primary Pitch: 8/12
- Secondary Pitch: 10/12
Add to Cart
Pricing
– westhomeplanners.com
– westhomeplanners.com
– westhomeplanners.com
– westhomeplanners.com
– westhomeplanners.com
– westhomeplanners.com
[Back to Search Results]

833–493–0942




