Plan No.230227
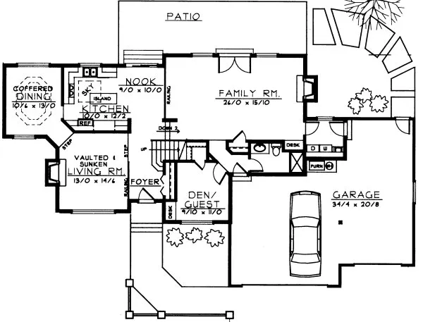
Design Comments: Living Room ceiling vaults to 12'-5", Foyer ceiling vaults to 18'-0", and Bedroom #2 ceiling vaults to 11'-6".
Specifications
Total 2394 sq ft
- Main: 1488
- Second: 906
- Third: 0
- Loft/Bonus: 0
- Basement: 0
- Garage: 809
Rooms
- Beds: 4
- Baths: 3
- 1/2 Bath: 0
- 3/4 Bath: 0
Ceiling Height
- Main: 9'0
- Second: 8'0
- Third:
- Loft/Bonus:
- Basement:
- Garage:
Details
- Exterior Walls: 2x6
- Garage Type: tripleGarage
- Width: 77'6
- Depth: 44'0
Roof
- Max Ridge Height: 28'0
- Comments: (Main Floor to Peak)
- Primary Pitch: 7/12
- Secondary Pitch: 0/12
Add to Cart
Pricing
– westhomeplanners.com
– westhomeplanners.com
– westhomeplanners.com
– westhomeplanners.com
[Back to Search Results]

833–493–0942


