Plan No.232127
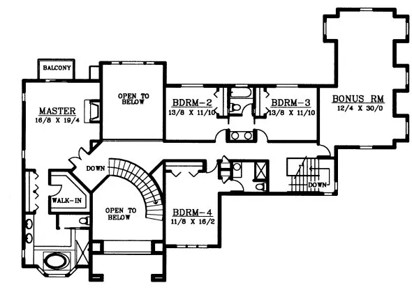
Design Comments: Family Room vaults to 24', Foyer = 20'. Please note, Bonus Room area is not included in the Total Square Footage.
Specifications
Total 4722 sq ft
- Main: 2393
- Second: 2329
- Third: 0
- Loft/Bonus: 543
- Basement: 0
- Garage: 864
Rooms
- Beds: 4
- Baths: 4
- 1/2 Bath: 1
- 3/4 Bath: 0
Ceiling Height
- Main: 10'0
- Second: 9'0
- Third:
- Loft/Bonus:
- Basement:
- Garage:
Details
- Exterior Walls: 2x6
- Garage Type: tripleGarage
- Width: 87'8
- Depth: 62'10
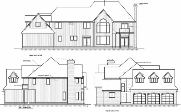
Roof
- Max Ridge Height: 36'10
- Comments: (Main Floor to Peak)
- Primary Pitch: 10/12
- Secondary Pitch: 14/12
Add to Cart
Pricing
– westhomeplanners.com
– westhomeplanners.com
– westhomeplanners.com
Front Photo – westhomeplanners.com
Elevations – westhomeplanners.com
[Back to Search Results]

833–493–0942



