Plan No.150476
Garage At The Rear
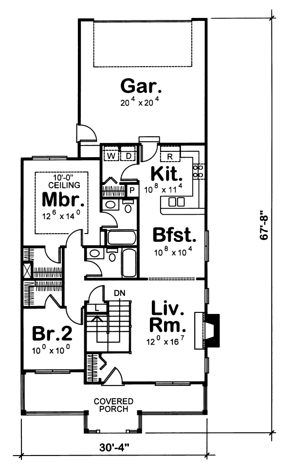
When your plans call for a home with the garage at the back, we love to create appealing facades using full-width front porches. Conversations with friend naturally move from that porch to the living room—visually open to the eating area and kitchen. Conveniently adjacent, the laundry room with closet is still separate from the unified entertaining area.
Specifications
Total 1142 sq ft
- Main: 1142
- Second: 0
- Third: 0
- Loft/Bonus: 0
- Basement: 1142
- Garage: 435
Rooms
- Beds: 2
- Baths: 2
- 1/2 Bath: 0
- 3/4 Bath: 0
Ceiling Height
- Main: 9'0
- Second:
- Third:
- Loft/Bonus:
- Basement: 8'0
- Garage: 10'4
Details
- Exterior Walls: 2x4
- Garage Type: doubleGarage
- Width: 30'4
- Depth: 59'8
Roof
- Max Ridge Height: 21'0
- Comments: (Main Floor to Peak)
- Primary Pitch: 0/12
- Secondary Pitch: 0/12
Add to Cart
Pricing
– westhomeplanners.com
– westhomeplanners.com
– westhomeplanners.com
[Back to Search Results]

833–493–0942

