Plan No.290259
Today's Traditions
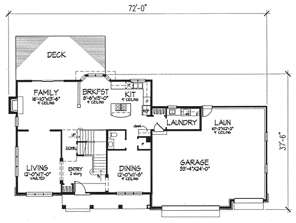
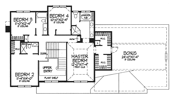
This charming design perfectly marries a traditional exterior to a modern floor plan. The gourmet kitchen expands into a bayed breakfast nook that looks over a low wall into the family room, which boasts a grand fireplace. Upstairs, the master suite flaunts dual walk-in closets, dual vanities, a garden tub and a separate shower.
Specifications
Total 2552 sq ft
- Main: 1333
- Second: 1219
- Third: 0
- Loft/Bonus: 0
- Basement: 1333
- Garage: 0
Rooms
- Beds: 4
- Baths: 3
- 1/2 Bath: 1
- 3/4 Bath: 0
Ceiling Height
- Main:
- Second:
- Third:
- Loft/Bonus:
- Basement:
- Garage:
Details
- Exterior Walls: 2x6
- Garage Type: tripleGarage
- Width: 72'0"
- Depth: 37'6"
Roof
- Max Ridge Height:
- Comments: ()
- Primary Pitch: 0/12
- Secondary Pitch: 0/12
Add to Cart
Pricing
– westhomeplanners.com
– westhomeplanners.com
– westhomeplanners.com
[Back to Search Results]

833–493–0942

