Plan No.210202
European Country
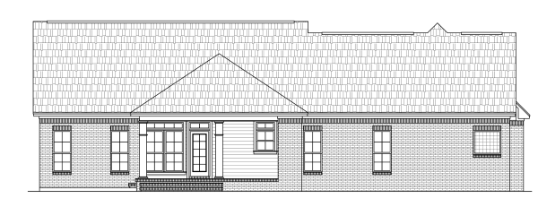
This inviting home has European Country styling with upscale features. The front and rear covered porches add plenty of usable outdoor living space, and include that much-requested outdoor kitchen. Expansive great room includes a beautiful trayed ceiling and features built-in cabinets and a gas fireplace. The spacious kitchen features an oversized island with a large eating bar and breakfast area. The hall bath is equipped with dual lavatories for convenience. The master bedroom has a raised ceiling and opens into the well-equipped bath with dual lavatories, oversized corner jet tub, and large his and her walk-in closets. There is a storage area off the garage for projects and storage. The media/hobby space could be used as a home office, dining room, or playroom. This is a very flexible home with plenty of options to choose from. Make this your family's next home!
Specifications
Total 2000 sq ft
- Main: 2000
- Second: 0
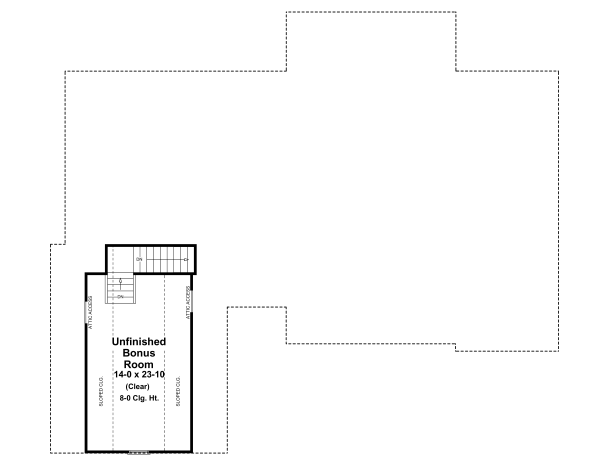
- Third: 0
- Loft/Bonus: 0
- Basement: 2000
- Garage: 721
Rooms
- Beds: 3
- Baths: 2
- 1/2 Bath: 1
- 3/4 Bath: 0
Ceiling Height
- Main: 9'0
- Second:
- Third:
- Loft/Bonus:
- Basement: 8'0
- Garage: 10'4
Details
- Exterior Walls: 2x4
- Garage Type:
- Width: 69'0
- Depth: 59'10
Roof
- Max Ridge Height: 22'5
- Comments: ()
- Primary Pitch: 8/12
- Secondary Pitch: 12/12

833–493–0942



